美濃クラフト DIP-SET-(表札・ポスト付き) DIP-(表札付き) ディッパー DIPPER [メーカー価格表の30%OFF+送料無料]
美濃クラフト DIP-SET-(表札・ポスト付き) DIP-(表札付き) ディッパー DIPPER
[メーカー価格表の30%OFF+送料無料]
販売価格(送料無料): 81,200円~112,700円(税別)
(税込: 89,320円~123,970円)
オプションにより価格が変わる場合もあります。
メーカーカタログ価格: 116,000円~161,000円
商品詳細



DIP-SET-(表札・ポスト付き)とは、
シンプルな柱と空に向かって伸びるデザインパネル。
爽やかで元気な、なんだか心地よいカタチ。
商品コード
ディッパー ポストセット
[品番]DIP-SET-□-■
※□は向き(L/R) ■はカラー品番
○サイズ
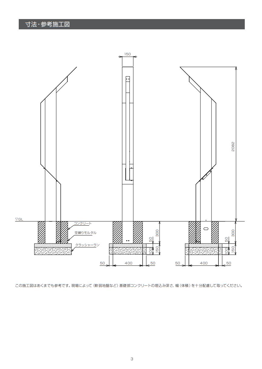
W488×H2082(2382×D372(mm)
サイズ変更不可の商品となります。
○重さ
約14kg
○素材
本体:アルミ
表札:ステンレス
ポスト:ZAM
○加工
シティブルー塗装&シルバー塗装
文字:凹黒色塗装
カラーは、11色の中から選択が可能です。
詳しくは、上部のカラー一覧をご覧ください。
○表札使用書体
漢字:丸フォーク
英字:新丸ゴR
お好きな書体に変更可能。
詳しくは、上部をご覧ください。
○備考
右用か左用かをご指定ください。
写真は左用(L)です。
インターホンは付属しません。
※12V変圧器が必要です。
○取付け方法
本体は、埋め込み+セメントでの取り付け
詳細は、上部をご確認ください。
商品コード
ディッパー
[品番]DIP-□-■
※□は向き(L/R) ■はカラー品番
○サイズ
W488×H2082(2382×D150(mm)
サイズ変更不可の商品となります。
○重さ
約8kg
○素材
本体:アルミ
表札:ステンレス
○加工
メタリックNブラウン&シルバー塗装
文字:凹黒色塗装
○備考
右用か左用かをご指定ください。
写真は左用(L)です。
インターホンは付属しません。
※12V変圧器が必要です。



北海道・沖縄・離島は、別途お見積りとなります。
詳しくは、お問い合わせ下さい。
返品・交換について
●商品到着後、すぐに開封をしてご確認をお願い致します。不良品の返品については、
すぐにご連絡をお願い致します。
●商品の間違いなど、当店の不手際による不備が生じた場合は、
当店で送料を負担しまして、至急にお取替え致します。
●イメージと違う、気が変わった等、お客様のご都合による理由や
一度使用された商品の交換・返品はお受け出来ませんので、ご了承をお願い致します。
他の写真(クリックしますと拡大写真が見れます)
-
●資料の見方について
ページ最上部の大きい写真の下にある、小さい写真をクリックしますと、
商品の資料を、上部の大きい写真でご覧頂けます。
大きな写真を、再度クリックしますと、より大きい画面でご確認ができます。
●お問い合わせについて
取り付け方法や納期、他にも何かご不明な点がございましたら、
上記のお問い合わせをクリックして、ご質問ください。
電話での対応をご希望でしたら、
072-322-3333(月〜金 8〜18時 土日祝除く)までご連絡ください。
●商品の安全性とお届けまでについて
表札メーカー美濃クラフトは、1984年に創業した日本の表札メーカーでは、
トップクラスのメーカーとなります。
毎年、斬新な表札を出すメーカーとしても有名で、
お洒落な表札が多くあります。
また当店も、2007年から四国化成の商品をネット販売している店舗となります。
ご注文から、商品のお届けまで、
責任を持って対応を致しますので、安心してご利用くださいませ。
レビュー
0件のレビュー






Facebookコメント